Sold

30 Racecourse Rd, Cooktown

SOLD

4 1 5 1,897 m2

4 Bedroom Family Home extra large outdoor area

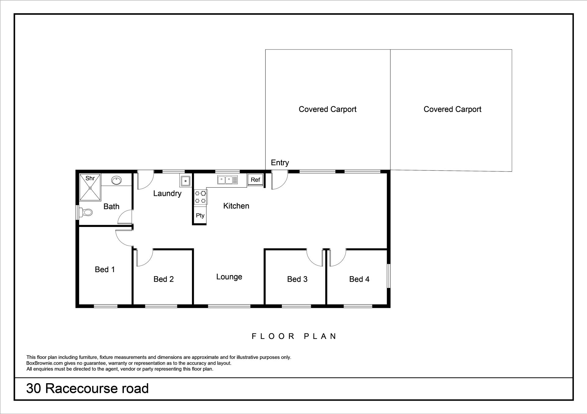
If you are looking for a spacious family home or solid investment property look no further.  Located on an extra large 1897m2 block, the home is set back from Racecourse Road screened by palms and with a full concrete driveway. There are two rooms including master at one end of the house and an open plan lounge kitchen and dining area opening through to the beautiful tiled BBQ/entertaining area. 2 bedrooms are at the other end of the house including family bathroom and laundry with side door out to the clothes line and separate shed with roller door. In the shed is a concrete room with concrete ceiling which could be a cyclone bunker!  An added bonus is the beautiful established gardens which provide privacy and a landscaped path down to your private seasonal creek that runs through the back of the property during wet season. Enjoy sitting around the outdoor fire place and relaxing with family and friends. This excellent location is only 3 minutes drive to main street, schools and health facilities. Phone today for a private inspection. More photos and rates available on request.

4 1 5 1,897 m2

Details

Address 30 Racecourse Rd, Cooktown
Price SOLD
Property Type Residential
Property ID 385
Category House
Land Area 1,897 m2
Floor Area 106 m2

Tools

Share This Property